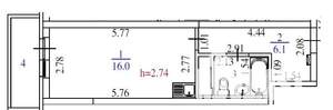
Студия квартира, на длительный срок, 24м², 1/10 этаж
21 000 ₽ в месяц
Чкаловский район, мкр. Елизавет, Бисертская 36
Мебелирована (шкаф, кровать, диван, обеденная зона, кухонный гарнитур)
С техникой (СВЧ, плитка, холодильник, стиралка, ТВ)
Рядом с домом школа, садик, масса магазинов( в т.ч. КБ в доме)
Остановка тра...
Собственник, 11.12.2025